Neben der Arbeit an eigenen Projekten unterstütze ich Bühnenbildner*innen in den Bereichen Modellbau und Planzeichnung.
Mit verschiedensten Materialien und Techniken setze ich die Ideen von anderen Kunstschaffenden im Maßstab als Modell um – vom Grundkastenbau, über Oberflächengestaltung bishin zum ganzen Bühnenmodell.
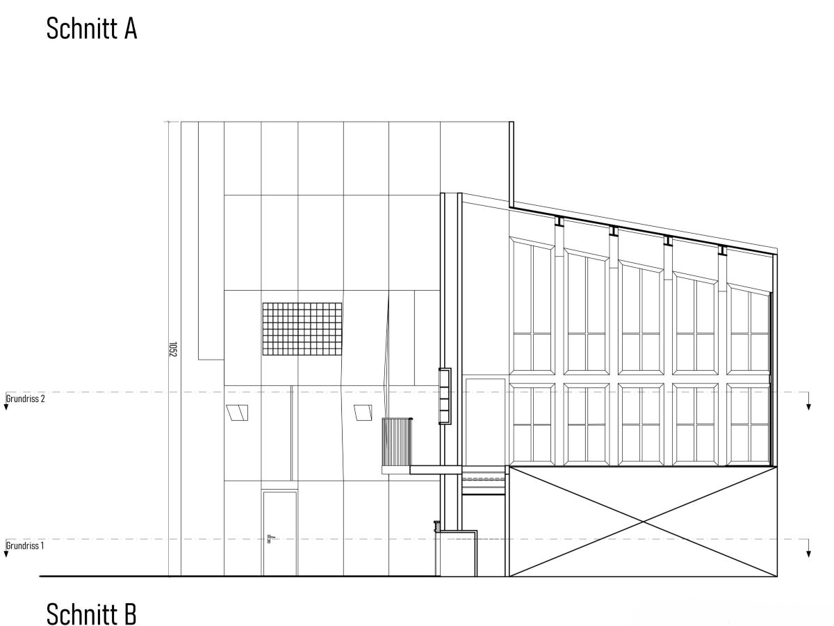
Mit dem digitalen Zeichentool Rhino 3D zeichne ich nicht nur abgabebereite Pläne, sondern gestalte auch digitale 3D-Visualisierungen.
Ich freue mich, Sie bei Ihrem nächsten Projekt mit Modellen und Plänen zu unterstützen. Für weitere Informationen kontaktieren Sie mich gerne.
max.seper@gmail.com
+43 650 5547181

Modellfotos
Planzeichnungen
Vorlage und Umsetzung
3D-Visualisierungen









